
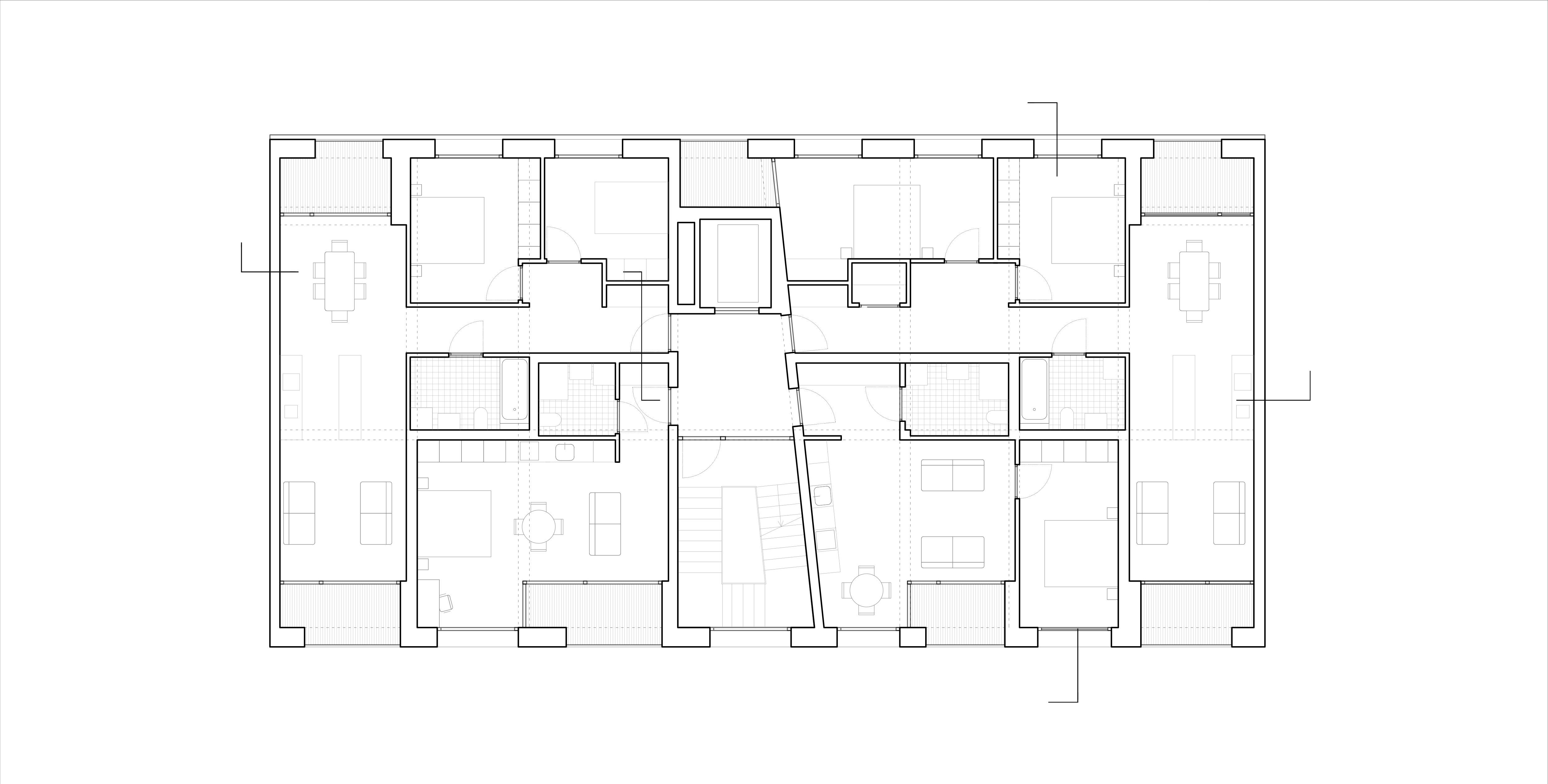
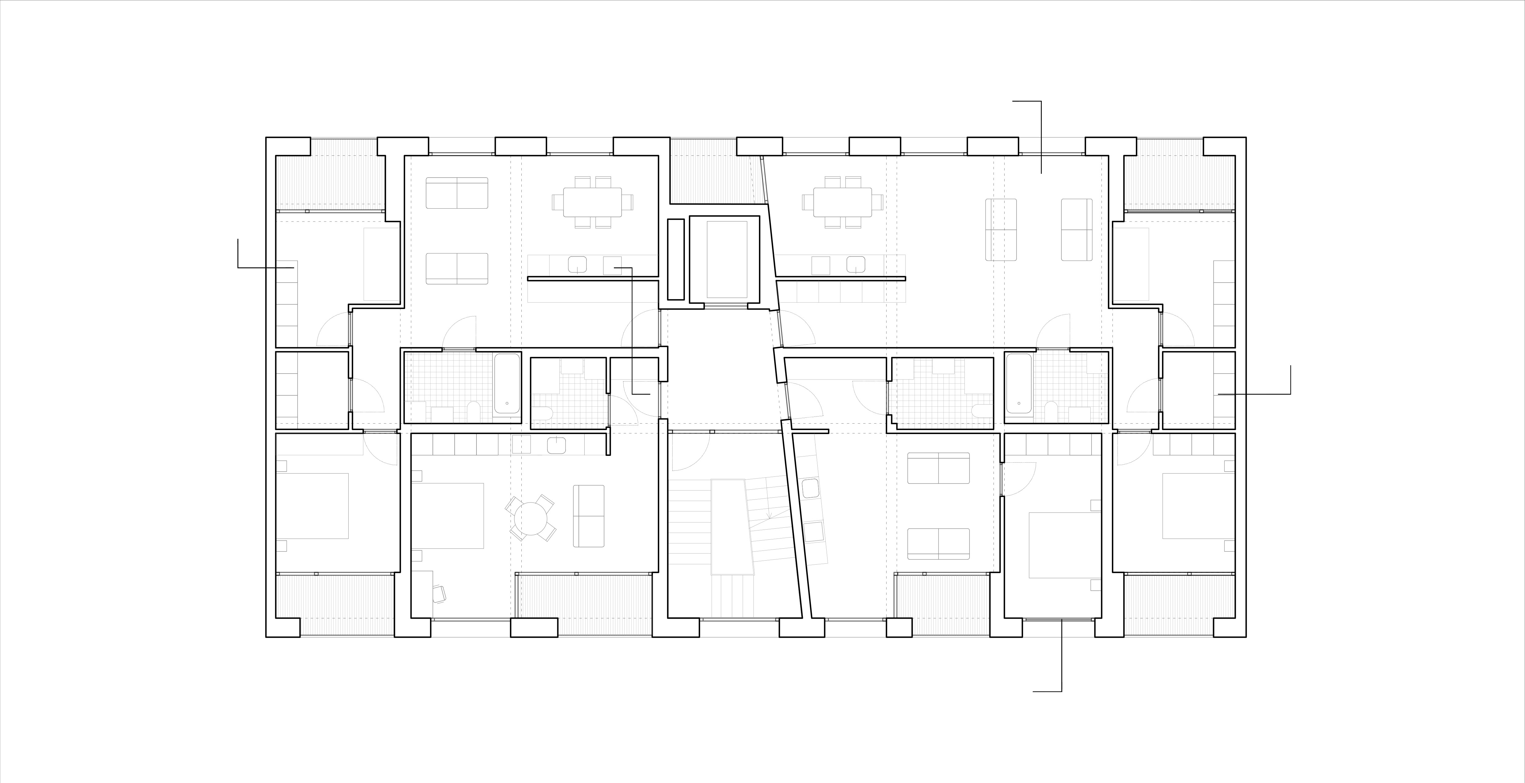
Historyczny obraz ulicy Breite Straße ulegał ciągłymprzemianom i rozwojowi od czasów średniowiecza. Pierwotnie organiczna strukturamiejska, złożona z wąskich domów i działek, była z biegiem lat łączona wwiększe zespoły i włączana w bardziej regularne układy uliczne. Budynki rosłyzarówno w pionie, jak i w poziomie, a elewacje były rozbudowywane, czegoświadectwem są subtelne nieregularności widoczne w historycznych perspektywachulicznych. Jednym z kluczowych założeń projektu jest uczynienie odczuwalną głębii wielowarstwowości historii tego miejsca. Wpisanie w kontekst urbanistycznyoraz kształtowanie bryły opiera się na rozumieniu historycznego charakteruBreite Straße jako całościowego układu, który poprzez indywidualne budynki izróżnicowaną parcelację tworzy spójny zespół urbanistyczny. Bryła budynku wramach etapu 4 została zaprojektowana jako jednorodna, tektoniczna całość. Jakowspółczesna kamienica miejska o wyrazistej elewacji wpisuje się ona w sposóbpowściągliwy w istniejący kontekst z użyciem minimalistycznych, zredukowanychśrodków wyrazu — takich jak struktura bryły i elewacji — jako element„służebny” wobec całościowego rozwoju urbanistycznego. Struktura elewacjiopiera się na klasycznym trójpodziale. Stanowi to bezpośrednie nawiązanie doartykulacji sąsiednich historycznych budynków, z ich charakterystycznymielementami takimi jak gzymsy, uskoki oraz głębokie ościeża. Od strony ulicyotwory okienne ku górze stają się mniejsze, co wzmacnia artykulację elewacji izapewnia większą prywatność na kondygnacjach mieszkalnych. Od strony dziedzińcazasada ta zostaje odwrócona, aby umożliwić lepszy kontakt wizualny i otwarciewidoków na wnętrze kwartału. Powstaje w ten sposób klarownie uporządkowanaelewacja otworowa o subtelnych nieregularnościach. Odzwierciedla ona historię irozwój tego miejsca, a jednocześnie umożliwia wprowadzanie zmian w układachfunkcjonalnych bez konieczności modyfikowania zewnętrznego wyrazu bryły.
komercyjne i mieszkalne
mieszkaniowe
2024
Berlin
m2
koncepcja
WXCA: Michał Czerwiński, Małgorzata Bonowicz, Michał Sokołowski, Mateusz Sokołowski, Michał Kalinowski, Julia Gronbeck
KOPERROTH: Marcus Kopper, Martin Roth, Asja Roth, Dominik Renner




